Elementy dodatkowe:
- Miejsce postojowe w hali garażowej: 60 000 zł (nie wliczone w cenę)
- Komórka lokatorska: 5500 zł/m.kw.
- Zakup udziału w drodze dojazdowej bez względu na wielkość lokalu: 1000 zł
Prospekt informacyjny:
Budynek 2.1
Budynek 2.2
Budynek 3
Budynek 5.3
Budynek 6
Apartamenty niespotykanego formatu
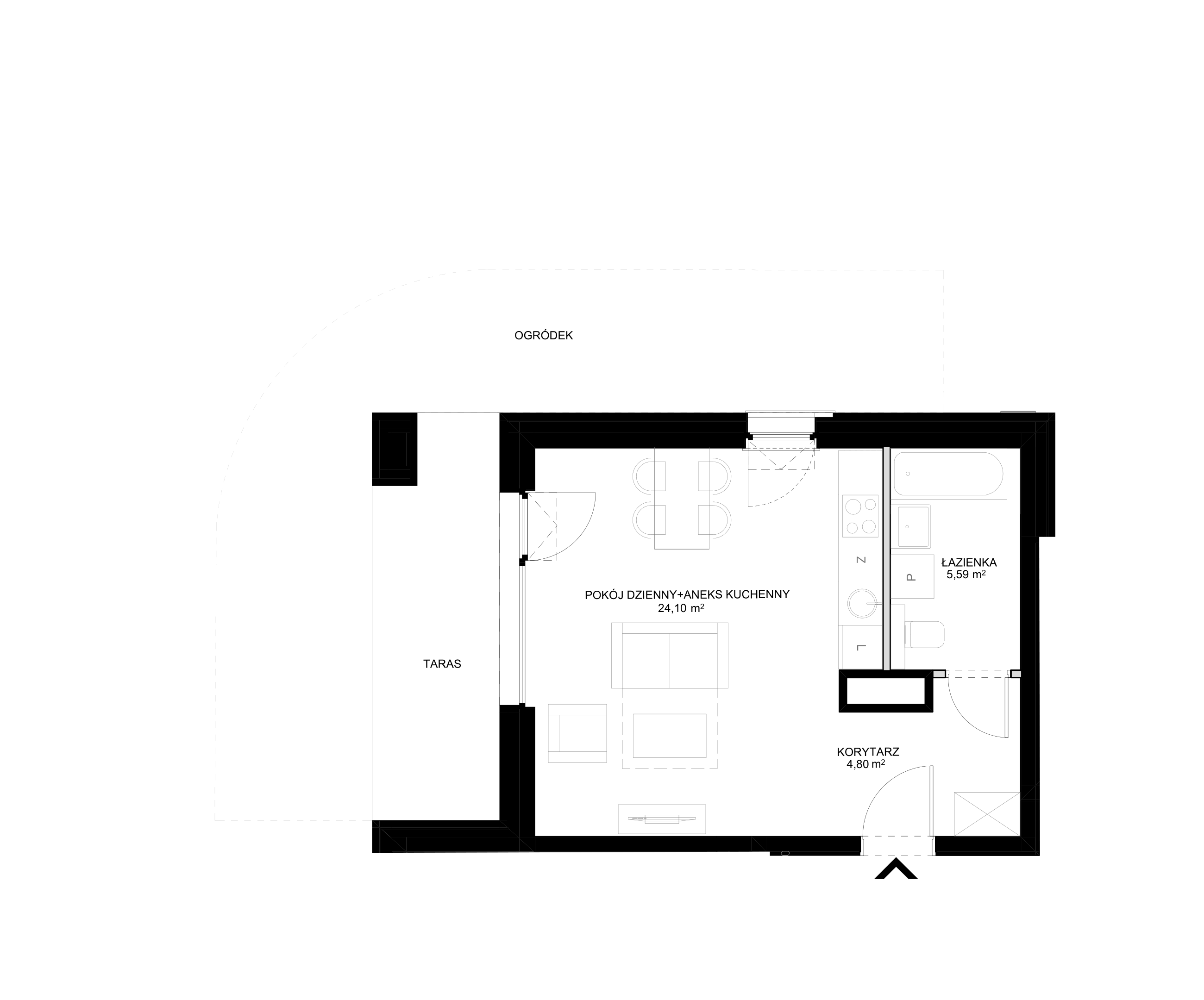
Scala to zupełnie nowy wymiar inwestycji. Zamiast stanu deweloperskiego lokale wykończone są w Modelu M – podwyższonym standardzie Moderny, gotowym do zamieszkania.
Oferowane apartamenty są wykończone w podwyższonym standardzie. Oznacza to, że w momencie odbioru apartament będzie miał wygładzone i pomalowane ściany, ułożone podłogi, zamontowane drzwi, wykonaną łazienkę i kuchnię.
To skrócenie czasu od odbioru do zamieszkania, oszczędność czasu i nerwów, ograniczenie uciążliwości długotrwałych sąsiedzkich remontów oraz szybszy zwrot z inwestycji, w przypadku zakupu pod wynajem.
Wykończenie jest dostępne w trzech ponadczasowych stylach, które zostały zaprojektowane tak, aby współgrać z pełną gamą aranżacji.
W przestrzeni osiedla powstaną przytulne zielone alejki oraz bogate aranżacje roślinne nawiązujące do dawnych śródmiejskich ogrodów. Na osiedlu pojawi się ponad 4500 nowych roślin, tworzących wspaniałe zielone otoczenie między budynkami. Wśród nich znajdą się szlachetne gatunki, które historycznie były ozdobą ulic Gdańska.

















